$1,349,900
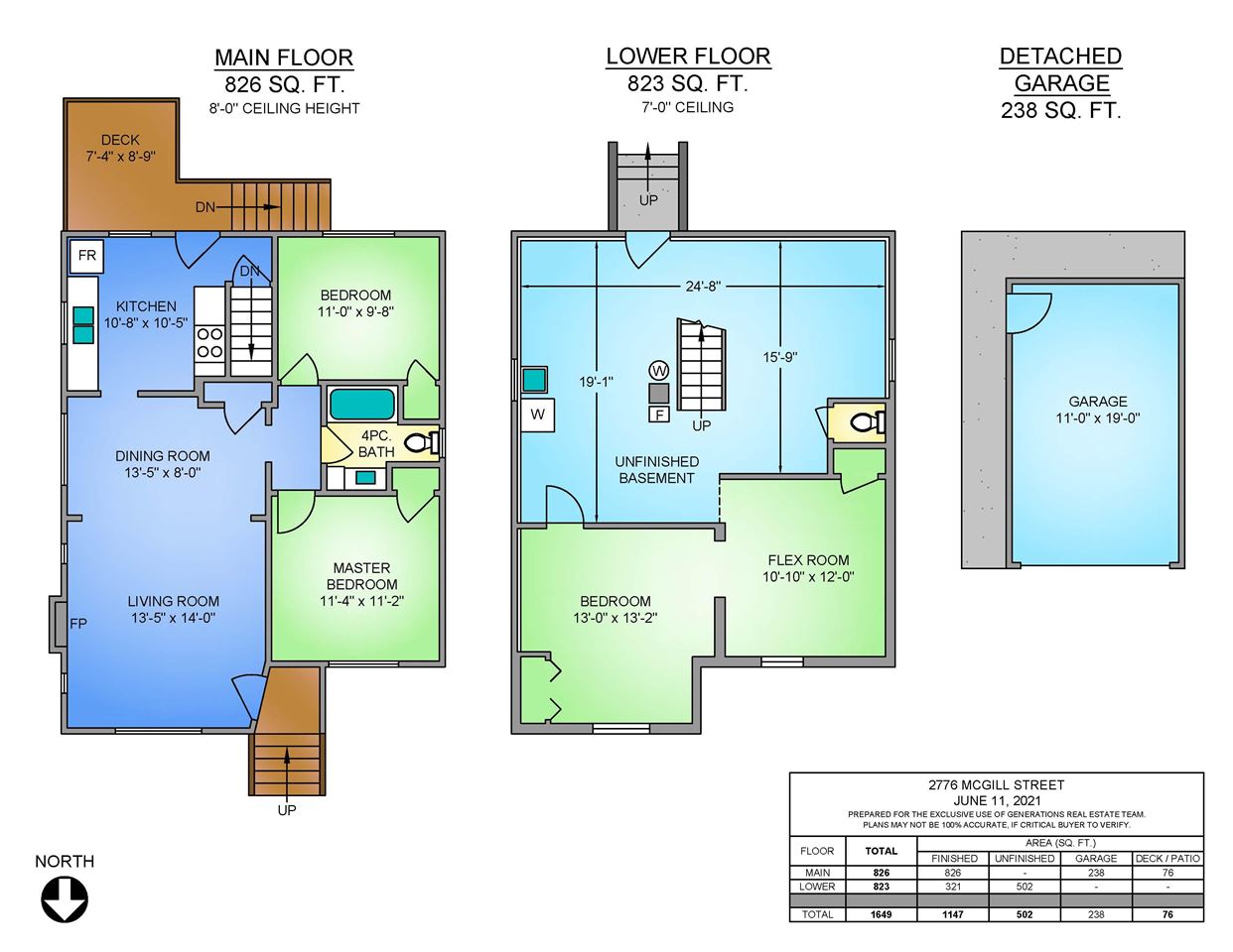
2776 McGill Street
Sold
Features & amenities
- In Suite Laundry
- Fireplace 1
Additional details
- MLS® # R2592293
Listing is presented by
Generations Real Estate Partners
RE/MAX Sabre Realty Group